NOTRE RÉPUTATION REPOSE SUR DU CONCRET
Découvrez ici nos derniers projets réalisés dans différents secteurs de la construction. Chacun reflète nos grands principes de qualité, d’efficacité et de saine gestion, tous parfaitement intégrés.
Les chiffres parlent d’eux-mêmes. Groupe CGF occupe une place de choix sur la scène immobilière. Alors, qu’est-ce qu’on peut faire pour vous ?
Complexe pétrolier Shell avec Starbucks et 2 étages à bureau à Charlemagne (OUVERT)
Charlemagne, QC, Canada
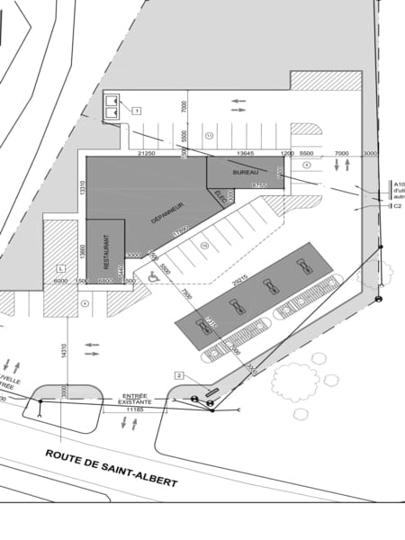
Complexe commercial abritant un Dépanneur, Station service et restaurant avec service au volant au 1er étage et 2 étages de bureau avec ascenseur situé au coin des boulevard Céline Dion et Notre Dame à Charlemagne, Qc
Site Pétrolier Irving et Lave Auto rue Dunant, Sherbrooke (Ouverture bientôt)
Rue Dunant, Sherbrooke, QC, Canada
Construction d'une station Service, Dépanneur , Lave-Auto ainsi qu'une restauration rapide
Myo Club
653 Boulevard Curé-Labelle, Sainte-Rose, QC, Canada
Myo Club inc.
Construction d'un site exclusif d'événements corporatifs de haut de gamme entièrement réservé aux membres. 2 000 pi ca d'infrastructure intérieur avec une cuisine intégré, bar et salle de conférence. 2 000 pi ca de terrasse extérieur entièrement couverte avec auvents rétractables, four à pizza, table de cuisson pour BBQ
Site pétrolier Harnois – Montréal EST – OUVERT
9600 Boul Henri-Bourassa E Montréal-Est, QC H1E 2S4
Site pétrolier Harnois situé sur le boulevard Henri-Bourassa
Site pétrolier Pétro Canada opéré par Couche-Tard avec Tim Hortons comme sous locataire avec Lave-Auto
1020 Rue Principale, Granby, QC, Canada
Site Pétrolier Pétro Canada opéré par Couche Tard incluant un Tim Hortons. Ce site possède une Lave-Auto et sera entièrement rénové entre 2019-2020
Site pétrolier Pétro Canada – Magog
1619 Chemin de la Rivière aux Cerises, Magog, Québec J1X 3W3, Canada
Site Pétrolier sous la bannière Pétro Canada avec dépanneur opéré par le Groupe Paré aux abord de l'Autoroute 10, adjacent à la rôtisserie St-Hubert. Le site sera entièrement rénové en 2019 et nous sommes à la recherche d'une restauration rapide d'environ 1 750 pi ca
Déménagement du Groupe CGF en mars 2019
679 Boulevard Curé-Labelle, Sainte-Rose, QC, Canada
Nous annonçons le déménagement du Groupe CGF inc. dans de nouveaux locaux à Laval situé au coin de l'autoroute 15 et du boulevard Curé-Labelle plus de 4 000 pi ca avec une terrasse aménagée de plus de 2 000 pi ca pour la promotion d'événements corporatifs. De plus, de l'espace est disponible pour environ 7 000 pi ca. L'occupation est pour le mois de décembre 2018
Site mixte Pétrolier et commercial – Buckignam (En développement)
lot 4193482
Projet Pétrolier et commerical
Site pétrolier Parkland & Restaurant Mcdonalds OUVERT DEPUIS LE 1ER NOVEMBRE
5340 ch st-jean st felix de valois
Projet pétrolier sous la bannière Parkland(Esso) avec lave auto De Castel et restuaration rapide sous la Bannière Mcdonalds
Site pétrolier et commercial – Mont Tremblant
369 QC-117, Mont-Tremblant, QC J8E 2X4, Canada
Site pétrolier Ultramar et centre commercial abritant L'Aubainerie situé sur la 117 adjacent au Mcdonald
Site Pétrolier Shell – Joliette
{46.02682405185166,-73.46048501062012}
Site pétrolier sous la Bannière Shell avec Lave Auto et dépanneur
Site pétrolier Shell – St-Anne des Lacs (En construction Ouverture prévue en février 2019)
134 QC-117, Piedmont, Québec, Canada
Site Pétrolier à la Sortie 57 de l'autoroute 15 sous la Bannière Shell-Filgo, Dépanneur, Lave auto et restauration rapide.
Étude de marché disponible
Site Pétrolier – Warwick
Québec 116, Warwick, QC, Canada
Projet pétrolier avec restauration rapide - Subway
Site Pétrolier Pétro-Canada Lavaltrie (En Construction Ouverture prévue en MAI 2019)
Lavaltrie, QC, Canada
Station service sous la bannière Pétro Canada, dépanneur Beau-soir, Lave Auto ainsi qu'un restaurant sous la Bannière A & W
Site Pétrolier Shell coin Industrielle et René-Lévesque (En opérations)
4776 Boulevard Industriel, Sherbrooke, QC, Canada
Site pétrolier sous la bannière Shell avec dépanneur, lave-auto et restauration rapide (à louer 2 000 pi ca). Phase 2 en location idéal pour restaurant environ 4 000 pi2
Site Pétrolier Harnois, Dépanneur à Beauharnois (en construction)
253 Chemin de la Beauce, Beauharnois, QC, Canada
Site Pétrolier Harnois à Laplaine (Ouvert) Local à louer
10551 Boulevard Laurier, Terrebonne, QC, Canada
Le projet consiste en la rénovation d'un bâtiment commercial existant d'un seul étage, situé au 10 551 boulevard Laurier, La Plaine. Une partie du bâtiment principal existant
sera démolie sur le côté droit et un percement sera effectué sur le côté gauche, afin de permettre d'accueillir 2 restaurants avec service à l'auto, de ± 186m² et ± 150m². Un
commerce de ± 148m² ainsi qu'un dépanneur de ± 296m² seront aussi incorporés à l'intérieur même du bâtiment principal. À titre de bâtiment accessoire, un lave-auto de ±
93m² accompagnera le projet, ainsi que 4 pompes à essence couronnées d'une marquise
Site pétrolier Harnois St-Calixte – VENDU
5470 Québec 335, Saint-Calixte, QC, Canada
Site en construction : station-service Harnois et dépanneur
Site pétrolier Thurso (en développement)
419 Québec 317, Thurso, QC, Canada
Site en développement : station-service avec dépanneur et lave-auto et restauration -Terrain de 435,586 pi2 situé aux abords de la route 317 - Site localisé à la sortie de l'A-50, emplacement adéquat pour une halte routière - Rayonnement élevé du site sur la population locale de Thurso et de la région immédiate environnante ainsi que sur les automobilistes en transit sur l'A-50 - Facile d'accès pour le marché local et en transit, car situé immédiatement à l'entrée/sortie 187 et sur la route 317 qui relie la municipalité de Thurso à l'A-50. - À LOUER - ESPACE JUSQU'À 6,000 pi2 AVEC SERVICE AU VOLANT
*** le plan de site peut changer sur demande
Projet mixte St-Jérôme (en développement)
553 Boulevard des Laurentides, Saint-Jérôme, QC, Canada
Site en développement : station-service avec dépanneur et locaux commerciaux. Possibilité de condominium (sous étude) - Terrain situé au croisement des routes 117 et 158 - Positionné Zonage commercial - PROJET 2018 - Le site est situé au 547-553 boul. Des Laurentides à St-Jérôme au coin des routes 158 et 117. Le trafic quotidien au coin de ces rues est de 29,000 autos par jour sur la 158 et 13,800 autos par jour sur la 117, selon le Ministère des Transports - À LOUER - ESPACE DISPONIBLE JUSQU'À 10,000 pi2 (restauration, pharmacie, etc.)
Site pétrolier Pétro-Canada – Ste-Anne-des-Plaines avec McDonald (En opérations depuis le 01/09/2018)
483 Boulevard Sainte Anne, Sainte-Anne-des-Plaines, QC, Canada
Site en opérations depuis le 1er septembre 2018
Pétro Canada, Dépanneur Boni soir, Lave Auto et Restaurant sous la bannière McDonald
Site pétrolier Pétro-Canada, McDonald, Dépanneur et Lave-Auto à St-Jacques (VENDU)
237 Rue Saint-Jacques, Saint-Jacques, QC
Construit en 2016, le site de St-Jacques abrite une station-service Pétro-Canada, un dépanneur avec un lave-auto ainsi qu'un restaurant McDonalds. De plus, il est munit d'un pilonne High-Rise avec un écran numérique de haute qualité.
Centre commercial Ste-Rose (espace à louer)
625 – 737 Boulevard Curé-Labelle, Laval, QC
Construit en 2007, le centre commercial compte trois bâtiments y abritant une quinzaine de locataires commerciaux (restauration, professionnels de la santé, pharmacie, banque et boutique de commodité) ainsi que soixante unités d’entreposage sous-terraine. - LOCAUX À LOUER - 1,139 pi2 et 2,000 pi2
Projet Bourg Papineau
699 Rue Papineau, Boisbriand, QC
Projet résidentiel de maisons de ville avec garage - UNE UNITÉ À VENDRE
Projet Montée Lesage
308-318 Montée Lesage, Rosemère, QC
Projet résidentiel de 16 unités de maisons de ville.
Projet Northcote
531 – 549 Rue Northcote, Rosemère, QC
Projet résidentiel de 10 unités de maisons de ville
Projet Angora
5800 – 5852 Rue d'Angora, Terrebonne, QC
Projet résidentiel de 22 unités de triplex.
Tim Hortons – Lachine
2525 Rue Victoria, Lachine, QC
Immeuble commercial de 7,000 pi2 abritant un Tim Hortons et autres commerces
Tim Hortons – Sherbrooke Est
9900 Rue Sherbrooke Est, Montréal, QC
Immeuble commercial construit sur mesure pour un Tim Hortons.
Condominium Dagenais O
4585 – 4599 Boulevard Dagenais O, Laval, QC
Condominium 16 unités avec garage.
Projet Daniel-Dony
8220 – 8285 Avenue Daniel-Dony, Montréal, QC
Projet résidentiel de maisons de ville avec garage.
Condominium St-Dominique
7550 Rue Saint-Dominique, Montréal, QC
Immeuble résidentiel de 15 unités de condominium avec garage intérieur - UNE UNITÉ À VENDRE OU À LOUER DE 850 pi2
Centre commercial Laval-Ouest
4769 Boulevard Dagenais O, Laval, QC
Centre commercial avec locataires multiples dont une pharmacie Uniprix.
Caisse Populaire Dagenais
4791 Boulevard Dagenais O, Laval, QC
Immeuble commercial à bureaux.
Site pétrolier Petro-Canada, Tim Horton’s, Dépanneur et Lave Auto à L’Épiphanie (VENDU)
201 Rue Payette, L'Épiphanie, QC
Construit en 2015, le site abrite une station-service Pétro-Canada avec un dépanneur ainsi qu'un restaurant Tim Horton’s.
Site pétrolier Pétro-Canada, Tim Horton, dépanneur et Lave-Auto à Lennoxville (en opération)
3825 Rue College, Lennoxville, Compton, QC
Site actuellement en opération depuis janvier 2018 abritant une station-service sous la bannière Pétro-Canada, un dépanneur Beausoir, un lave-auto ainsi qu'un restaurant Tim Horton’s.
Site pétrolier Shell, Dépanneur et Lave-Auto à Granby – rue Robitaille (espace à louer)
134 Rue Robitaille, Granby, QC
Construit en 2017, ce site abrite une station-service Shell, un dépanneur avec lave-auto ainsi que 2 restaurants. - Terrain de 76,285 pi2 situé au coin du boulevard Pierre-Laporte et de la rue Robitaille - Trafic quotidien de 8,800 voitures selon le Ministère des Transports - Site existant – construction 2017 - Secteur en fort développement résidentiels - À LOUER - ESPACE DE 1,200 pi2
Site pétrolier Shell, Dépanneur à Ste-Sophie (VENDU)
159 Chemin de l'Achigan Sud, Sainte-Sophie, QC
Construit en 2017, ce site abrite une station-service Shell-Filgo avec dépanneur.
Site pétrolier Shell Rawdon (projet vendu)
3515 Rue Queen, Rawdon, QC
Construit en 2017, ce site abrite une station-service Shell-Filgo et un dépanneur.
Site pétrolier SHELL à Ste-Julienne – VENDU
1175 Québec 125, Sainte-Julienne, QC
Construit en 2017, ce site abrite une station-service Shell-Filgo, un dépanneur avec un lave-auto ainsi que deux restaurants.
Site pétrolier Pétro-Canada et dépanneur à Grand-Mère adjacent à un Mcdonald
2333 8e Rue, Grand-Mère, QC
Construit en 2016, ce site abrite une station-service Pétro-Canada avec dépanneur et lave-auto. Situé diretement à côté du McDonalds.
Site pétrolier Pétro-Canada, Dépanneur et Lave Auto à Donnacona
90 Route 138, Donnacona, QC
Ce site existant abrite une station-service Pétro-Canada, un dépanneur et un lave-auto. Le site sera entièrement rénové à l'automne 2017.
Site pétrolier Lévis-Pintendre (en développement)
Route du Président-Kennedy & 7e Av O, Pintendre, QC
Projet en développement : station-service avec dépanneur, lave-auto et deux restaurants - PROJET 2018 - Terrain de 209,330 pi2 situé au coin de la 173 (Président-Kennedy) et de la 7ième avenue - Secteur en fort développement résidentiels - Trafic quotidien de 21,000 voitures par jour selon le Ministère des Transports - À LOUER - ESPACE JUSQU'À 13,640 pi2
*** le plan de site peut changer sur demande
Site pétrolier Pétro Canada et A & W à Lavaltrie (en construction – Ouverture prévue en MAI 2019)
{45.895036310493694,-73.29732752380369}
Site en Construction : Station-service, dépanneur Beau-Soir, lave-auto et A & W
Site pétrolier Pétro-Canada et A & W à Ste-Agathe (Ouvert le 7 décembre 2018)
850 Rue Principale E & Rue Lajeunesse, Sainte-Agathe-des-Monts, QC
Site en développement : station-service Pétro-Canada, dépanneur, lave-auto et restaurant A&W
Site pétrolier Granby route 112 (en développement)
Rue Principale & Rue de l'Acadie, Granby, QC
Projet en développement : station-service Petro-Canada, dépanneur et Tim Hortons - Terrain de 120,915 pi2 situé au coin des rues Principale et de l’Acadie - Trafic quotidien de 13,800 voitures selon le Ministère des Transports - PROJET 2018 - LOCAUX DISPONIBLES
*** PLAN DE SITE PEUT CHANGER
Site pétrolier Harnois, Dépanneur à Lachenaie (OUVERT)
QC-344 & Montée des Pionniers, Terrebonne, QC
Site en opération : station-service Harnois, dépanneur et Starbuck